河北衡联金属制品有限公司
联系人:李经理
电话:0318-7880081
传真:0318-7592858
手机:13831801265
手机:13315851265
邮箱:hlmesh@163.com
地址:河北省饶阳县302省道城西工业园区
发布日期:2014-04-10 08:42:20 作者:衡联丝网 点击数:

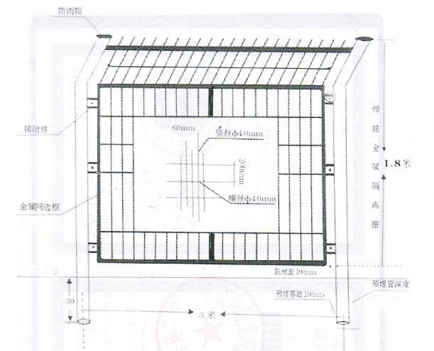
(高速公路护栏网安装图纸) 高速公路护栏网价格110元/套
我厂十几年专业致力于研究、开发、生产和销售护栏网,围栏,隔离栅,栅栏,努力向市场和客户提供高品质的金属护栏网系统的技术服务和解决方案,是目前中国市场上最具竞争力的高品质护栏网厂家之一
框架护栏网安装方案:
1.基础采用现场浇筑,基坑采用人工开挖,不能用人工开挖的岩石部分采用风镐或风枪打浅孔。
2.基坑开挖坡度视地而定,安装混凝土基础前需检验基坑尺寸是否合适,平面位置及地面平整度和密实度,随即进行基础施工。
3灌筑基础:混凝土前,对基坑进行检查,检查的内容为:①基地平面位置,标高是否符合规范要求。②基地土质是否满足规范要求。③基坑有无积水,杂物、松散土质,是否清理完。
4. 基础混凝土浇筑
基坑开挖到位后,应尽快浇筑混凝土基础,基础浇筑时要保证其位置,稳定性及标高:立柱混凝土基础尺寸为300mm*300mm*400mm 5.金属护栏网立柱施工方法,立柱制作完毕后,根据基础施工情况进行安装 一般采用二次浇灌成型,首先在基础上做好二次浇灌预留孔,预留孔大小取决于立柱直径,一般大于立柱直径15-25mm,作为二次浇灌使用。 6.金属护栏网网片施工方法:根据要求按照基础及立柱施工,而后进行网片安装施工。施工工程根据直线原则,同时又要对不平整地形,尽量整成直线平坡或斜披,使结构上不要有太大起伏。
标签: 暂无数据!
547633621
133-1585-1265
微信扫一扫加好友
